Spécialiste depuis plus de 40 ans dans la conception de cuisines sur mesure.
AMENAGER Une suite parentale
On rêve tous d’aménager une suite parentale chez nous. Elle nous plonge directement ailleurs, dans un espace hors du temps. Elle nous fait voyager dans cette suite d’hôtel que l’on a réservé dans sa capitale européenne préférée. Un espace entièrement à nous, constitué de notre chambre agencée et attenante à toutes les premières nécessités du matin. Des espaces exclusivement utilisés par les occupants de ladite chambre.
A l’instar des chambres d’hôtels, mille et une idées nous viennent en tête quand on évoque le sujet de la suite parentale. Un ensemble harmonieux, une circulation différente de la chambre classique, et calquée à notre image la plus intimiste. Si toutes les idées qui en découlent sont les curseurs fondamentaux de vos projets, il faut tout de même réfléchir sa suite parentale de différentes manières. Elle s’aménage selon son mode de vie, ses besoins… Tout en pensant aux petits aléas et autres habitudes du quotidien que l’on ne retrouve pas dans une suite d’hôtel !

Les envies d'une chambre parentale
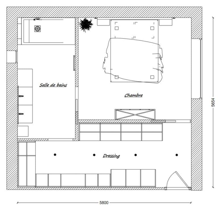
Dans un tel projet, le premier objectif c’est d’allier au mieux envies et volume. Car pour aménager une suite parentale, il faut avoir un minimum d’espace. Pour un ensemble chambre/salle de bain/dressing, un minimum de 30m2 est nécessaire. Néanmoins des ajustements sont toujours possibles ! Si le dressing est la priorité numéro 1, un agencement chambre + dressing peut être pensé et ce dans une configuration originale ! Si la salle de bain est primordiale, alors pourquoi ne pas se pencher sur une salle d’eau? Ou alors réfléchir à l’intégration d’un dressing directement dans la chambre afin de gagner de la place.

Lorsque l’on aménage une suite parentale, la chambre est le cœur du sujet. Et la première interrogation se posera sur la taille du lit. Il est évident qu’un lit king size nécessite un espace plus important car il faut garder une circulation aisée. Si le manque de place se fait sentir, des coffres de lit peuvent être intégrés ou des murs de rangements.


Concernant le dressing, il est important d’estimer quels types de rangement vous avez besoin. Placards, penderie, tiroirs avec grande ou petite profondeur, meubles bas de type buffet, rangements toutes hauteurs…. Pour cela, il est nécessaire de faire l’inventaire de ce que vous possédez. Nos équipes se chargeront de vous faire découvrir les meilleurs équipements et rangements. Dressing ouvert, fermé, vitré, il y en a pour tous les goûts tout en pensant aux aléas du quotidien, nous y reviendrons.

La salle de bain peut se résumer à une vasque cachant une douche, garant de l’espace. La baignoire n’est qu’une option, surtout si une autre salle de bain en accueille une dans le logement. Et quand on a de la place, alors l’imagination n’a plus qu’à se laisser aller… aviez-vous pensé au sauna ?


Vous rêvez aussi d’une suite parentale à la maison ?
Faites appel à nos services en contactant SAMO Angers.
définir son mode de vie pour aménager une suite parentale
Tout d’abord, l’agencement de l’espace suite parentale doit être particulièrement réfléchi en termes de circulation. En effet celui-ci doit correspondre au mode de vie de ses occupants.
Est-ce que l’un se lève avant l’autre ? Doit il repasser par la chambre pour sortir ? Les lumières du dressing ouvert ne gêneront pas le sommeil de l’autre ? Doit-on penser à isoler le bruit de la douche dans la chambre ?
Votre quotidien doit définir votre espace, et non l’inverse (on retrouve d’ailleurs ces questions dans chaque espace de votre intérieur, comme la buanderie par exemple) !
Mais cette circulation peut aussi être pensée en terme de gain de place. Dans un espace rectangulaire classique, l’agencement parental apportera tout de suite originalité et gain d’aménagement. Prenons cet exemple, une chambre classique peut être pensée tout autrement avec l’ajout d’un mur en placo avec télévision intégrée et dressing à l’arrière, un véritable gain en rangement et une circulation totalement innovante dans votre pièce !




Deux exemples de circulation ont été pensé par nos équipes dans des projets d’aménagement de chambre parentale. Il y a la circulation linéaire : il faut repasser par la chambre pour ressortir. Et la circulation circulaire : les trois espaces de la suite parentale forment un triangle avec la possibilité de faire le tour sans repasser par la première pièce.


La question subsidiaire, pour aménager une suite parentale de façon optimale, c’est de savoir par quel espace vous entrez : chambre ou dressing ?
Enfin il faut réfléchir au degré d’intimité qu’on a envie de retrouver dans l’ensemble : salle de bain et douche semi-ouverte (mais attention aux aléas !), intégration de toilettes, etc.
PENSEZ AUX ALéas
Parce que la suite parentale n’est pas une chambre d’hôtel temporaire dans votre quotidien, il faut penser à tout pour y vivre de la façon la plus confortable. Nous vous alerterons sur certains points particulièrement.
Si l’idée d’une salle de bain ouverte, une baignoire semi-cachée derrière un pan de mur ou encore un carré de douche central au milieu de la pièce pourrait rendre l’ensemble atypique et détonnant, la réalité serait autre. Un sanitaire ouvert sur l’espace chambre parentale permettrait à l’humidité de s’infiltrer dans la pièce. Il faut y penser notamment pour vos vêtements ! Voilà un détail qui rendrait les choses tout de suite moins agréables.


L’autre point d’alerte concerne l’emplacement du dressing ouvert ou vitré à éloigner de la lumière du jour. En effet, des vêtements exposés directement à cause d’une fenêtre adjacente pourrait décolorer. Ou alors il faudrait penser à des façades opaques ou un dressing fermé.

Enfin, et toujours dans cette idée de mode de vie de chacun, il faut penser lumière lorsqu’on aménage une suite parentale. Quoi de plus désagréable d’être réveillé par les lumières automatiques du dressing ouvert, lors du passage de l’autre. Lumière directe, indirecte, liseuses aux chevets ou leds douces incorporées aux meubles de salle de bain ou du dressing… La cohabitation peut être parfaite en y réfléchissant bien.

L’avantage, c’est que l’équipe Samo est là pour vous alerter sur ces aléas du quotidien et que notre cœur de métier permet des solutions qui restent fidèles à l’authenticité de vos envies et projets
Un passage d’homme vers la salle de bain, un claustra ou une verrière peuvent apporter ces touches originales en comblant les aléas et s’adapter à votre quotidien.

La suite parentale, c’est un véritable projet sur mesure, à votre image, et adapté à vos besoins. Un lieu de vie et de sommeil, d’habillage et de réveil… Vous avez le droit d’avoir les rêves les plus fous, et Samo a le devoir de les réaliser même le devoir de l’imaginer encore mieux qu’une suite d’hôtel finalement, non ?
Découvrez aussi nos inspirations pour aménager une suite parentale sur Pinterest !
Vous avez un projet de suite parentale à Angers ?


